 |
Von Rheinhausen aus kommend,
stellen Sie Ihren PKW auf
der Asterlager Str. ab und
gehen Links in die
Privatstraße gegenüber der
Hüttenstr. hinein. |
 |
Von der A40 Abfahrt Duisburg
Homberg aus kommend, stellen
Sie Ihren PKW auf der
Asterlager Str. ab und gehen
Rechts in die Privatstraße
gegenüber der Hüttenstr.
hinein. |
 |
Der
Privatstraße ca. 80 Meter
folgen. |
 |
Vor dem 1. Gebäude rechts
auf dem Parkplatz fahren. |

Bilder Anklicken zum
vergrößern.
 |
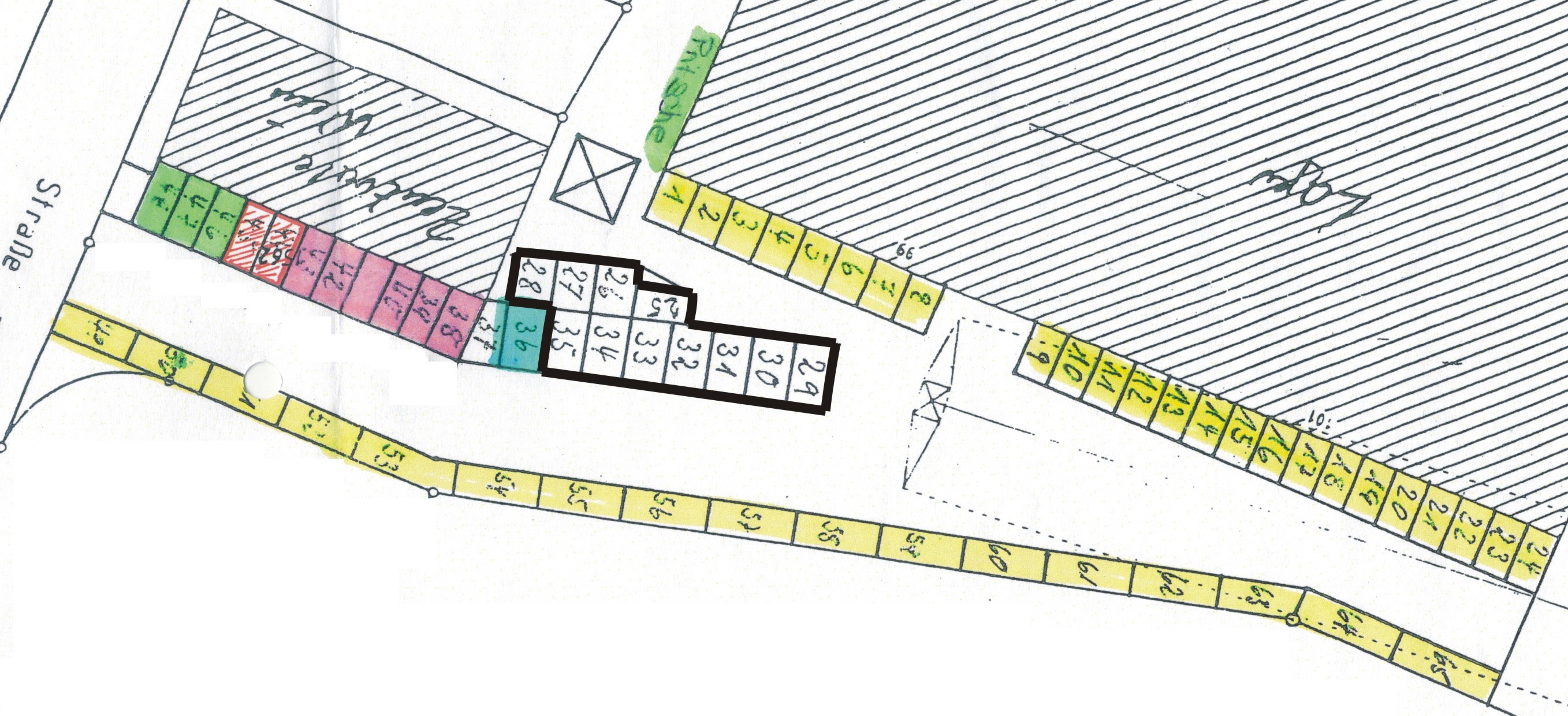
Auf
dem Parkplatz angekommen
benutzen Sie bitte die
Stellflächen 25 - 35. Diese
sind auf
dem Plan mit einen dicken
schwarzen Rahmen markiert.
Die
anderen Stellplätze, die
farblich markiert sind, sind für andere Mieter
und deren Kundschaft Reserviert.
Bitte an diese Parkordnung
immer halten, da wir mit den
Nachbar Mietern keine
Probleme bekommen möchten,
auch Samstags und Sonntags. |
 |
In diesem Haus unten in der
Tief Paterre, sind wir zu
finden. Der Eingang befindet
sich mittig am Haus.
|
 |
Die Eingangstür ist immer
geschlossen.
Vor der Tür befindet sich
auch unsere "Raucherecke".
Hier können Sie schon über
die ersten Fusselflitzer
stolpern. Zögern sie nicht
Sie anzusprechen, die beißen
auch nicht. |
 |
Sollte der Vorraum leer
sein, klingeln sie bitte
(ruhig öfters), die Leute
Vorort sind im Rennkoma und
müssen erst einmal da draus
erwachen !
Wir werden ihnen dann
persönlich die Türe öffnen
und Sie willkommen heißen. |